PROPERTY SUMMARY
PROPERTY DESCRIPTION
Positioned in Sydney’s premium residential dress circle looking North over Hyde Park, One30 Hyde Park encapsulates Sydney’s finest views of the City, Harbour and glorious landmarks. Meticulously designed by award-winning Bates Smart, One30 Hyde Park offers a cornucopia of classical comforts where nothing has been left to chance.
Showcasing premium luxury apartments, perfectly positioned in the heart of Sydney’s CBD, the lasting appeal of One30 Hyde Park ensures an astute investment in a lifestyle for those who appreciate the finer things.
Features:
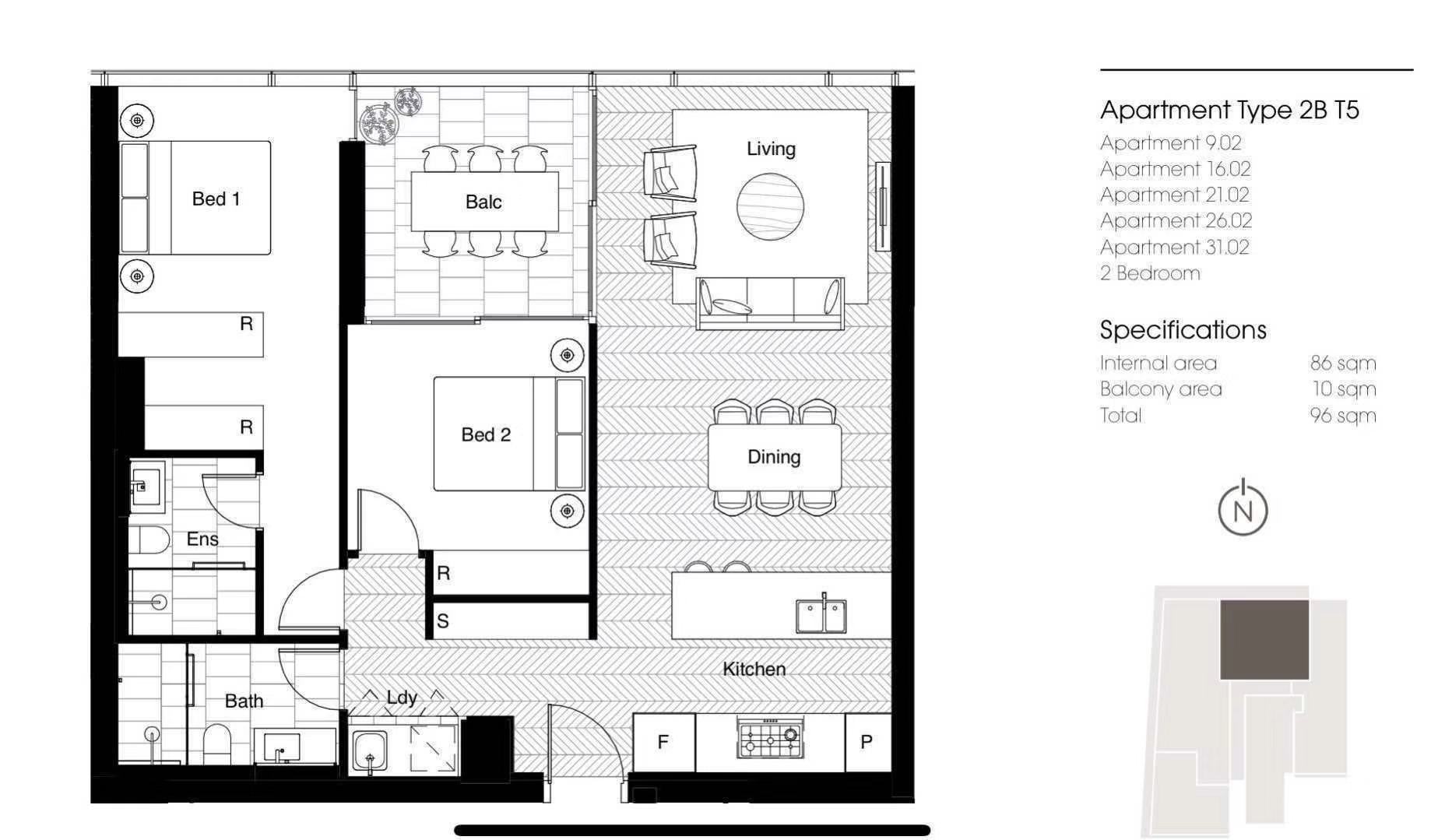
– Open plan living and dining
– Uninterrupted north facing Hyde Park view
– Premium Chevron patterned timber flooring
– Well designed kitchen with Gaggenau appliances and Fisher & Paykel fridge
– Two bedrooms with built-in, master with ensuite bathroom
– Large entertaining enclosed balcony
– Internal laundry with washer & dryer
– Indoor residents only gym
– Concierge service
– High tech lift & security systems
– Secure basement parking
– Across the road from Hyde Park and minutes to Sydney’s finest retail (World Square, Westfield) and dining
– Currenlty it is tenanted, the monthly rent is $7386.90
Outgoings (per quarter)
Strata: $1,775.83
Council: $320.90
Water: $206.64
Total Area: 109 sqm
Internal + Balcony – 95 sqm
Parking + Storage – 14 sqm
Perfect for downsizers, or savvy investors looking for space, lifestyle and convenience
Disclaimer:
All information contained herein has been sourced from reliable third parties. However, we cannot guarantee its accuracy, and interested parties should rely on their own independent enquiries. Figures and details are subject to change without notice.













